We Can accommodate applicants from 1 to 10 young adults on an individual or group bases
A Huge 10 room property adapted for student living requirements.
The 5 star rated landlords created this property with young adults in mind.
Fully licensed to meet all the essential safety criteria
Available from 01-07-26
Your ground floor communal area allows a vast social gathering hub which can spill out into the rear garden deck for the lazy summer BBQ nights with a cold glass of two
Your dual kitchens allow the budding chefs plenty of culinary elbow room for when the Manchester sun has evaded.
3 bathrooms for the wake up call..
Your personal space is well furnished with double beds, wardrobes, drawers .. And the desk!
Located within 2 mins walk of Wilmslow Road for the 24 hour bus routes to Manchester
The bars, restaurants, and shops in Withington village.. Again 2 mins walk
Your game of footy, tennis or just a lazy park day.. just a stroll across the road.
Washing/dishwashing/drying facilites provided
VOOM super fast Business Broadband provided
Rent £750 pppm
Reposit (alternate deposit) £173PP
Reservation £173pp
* all uitlities to be included with a Fair Usage Policy
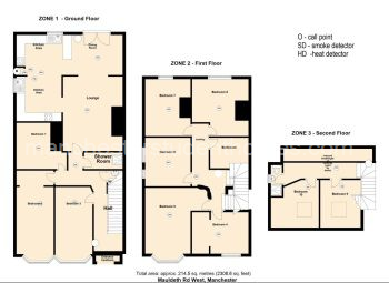
Front
room 7
Lounge
Room 6
Room 4
Kitchens 1 and 2
Rent:£700 MonthProperty let to individuals
Tenancy Fees Information
10 Bedrooms (10 Available)Available 01/07/2026Security Deposit:£161 Per Person (per year)
Advert Ref:MSHP8891484
No. of bedrooms available10
Available:
01/07/2026
£700FromPer person per month£161.54 PP/Per Week (price for comparison)
Click for a full range of prices
Summer ConcessionHalf RentHolding Deposit£161.00 -161.00Security Deposit:£161 Per Person (per year)
Tenancy Fees Information
Tenancy Deposit Scheme:N/ACouncil Tax Band:AGuarantor Required:UK based guarantor required to pay by instalmentsContract Length:Long Let
Rent Includes
ElectricityGasWaterBillsTv LicenceInternetBuildings InsuranceContents InsuranceBreakfastEvening MealBed linen/towelsUtility Cap Applies
| Description | Price | Frequency | Price for comparison (per day)* |
| Per room | £700 | Per person per month | £23.01 |
* Prices per day are based on 365 days in a year. Whole property prices per day based on a single occupant / family unit
Property Details:
Property Type:
Shared/Whole Property, House
Area:
Withington
Town:
Manchester
Total number of bedrooms:
10
Heating:
Gas Heating
wooohoo
Shared Facilities:
- Bicycle Storage
- Broadband Internet
- Caretaker/Team on site after hours
- Dishwasher
- Double Glazing
- Front or Back Garden/Yard
- Gym
- Lift
- Microwave
- Onsite Launderette
- Recent Redecoration (Within 5 Years)
- Satellite Dish/Cable
- Seperate WC
- Telephone
- Television
- Tumble Dryer
- Washing Machine
- Wheelchair Access
- Wireless Internet
Private Facilities:
- All Double Bedrooms
- En-Suite
- Meal Option
- Off Road Parking
- Secure Car Parking
Suitable For:
- Family
- Lodger
- Pets
- Postgraduates
- Staff
- Undergraduates
Sustainable Living:
- Compost Bin
- Double Glazed Windows
- Energy Efficient Boiler
- Energy Efficient Domestic Appliances
- Energy Efficient Light Bulbs
- Heating Timer and/or Programmer
- Insulation
- Internal Recycle Bin
- Low Flow Shower
- Renewable Energy for Electricity
- Renewable Energy for Heating
- Room Thermostat
- Smart Meter
- Solar Panels
Other Facilities:
Virgin Business ZOOM Fibre Broadband
Safety & Security:
- Burglar Alarm
- CCTV
- Key Code Entry System
- Key Fob Entry
- Security Lighting
- Video Entry System
Mobility
- Adapted Bathroom
- Adapted Kitchen
- Adapted Toilet
- Allergy Free
- Door(s) wide enough for wheelchair access (external 800mm, internal 750mm)
- Fairly Level Access Throughout
- Ground Floor Bathroom
- Ground Floor Bathroom with sufficient space for a Wheelchair
- Ground Floor Bedroom
- Ground Floor Bedroom with sufficient space for a Wheelchair
- Ground Floor Toilet with sufficient space for a Wheelchair
- Ground Floor WC
- Level Entry Shower / Wet Room**
- Mid Height Sockets / Switches**
- Moveable Access Ramp
- No Difficult Outside Steps
- Permanant Level or Ramped Access
- Shower / Wet Room
- Shower Over Bath
- Visual / Vibrating Fire Alarm
- Wall Mounted Shower Seat
HMO Certified
HMO Expires27/01/2030
| ENERGY EFFICIENCY RATING |
| |
Actual |
Poss |
(92+)A
(81-91)B
(69-80)C
(55-68)D
(39-54)E
(21-39)F
(1-20)G
|
55
|
77
|
| ENVIRONMENTAL IMPACT RATING |
| |
Actual |
Poss |
(92+)A
(81-91)B
(69-80)C
(55-68)D
(39-54)E
(21-38)F
(1-20)G
|
46
|
70
|
Agent/Landlord Details:
Agent/Landlord:myhouse Agents
Contact:myhouse Agents
Accreditation Rating:
Please mention Studentpad when booking your student accommodation