Let available to a group of 10 only.
Rent includes all bills: water, electricity, gas and internet (council tax exempt for students).
Rental payments and contracts:
Available to let for the 2026-2027 academic year. £4,900 deposit required (£490 per person). Tenancy from 01 July 2026 - 30 Jun 2027. £6,500 per month, including bills (£150 per person per week). Option for half rent payable for July and August period.
This 10 bedroom property is ideally located for students, situated on the outskirts of Manchester City Centre and just a five-minute walk from Oxford Road - offering exceptional access to both the University of Manchester and Manchester Metropolitan University campuses.
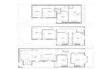
Layout:
Ground Floor:
Spacious entrance hallway
Two bedrooms
W/C with laundry facilities
Extended open-plan kitchen and living area
First Floor:
Four bedrooms
Full bathroom
Shower room with double sink
Top Floor:
Four bedrooms
Shower room
The property's location provides easy access to both university campuses while being close to the shops, restaurants, and bars of Oxford Road. With multiple bathrooms and a practical layout across three floors, this house is well-suited for group living in a convenient city location.
    
 
    
        
    
    
    
    
    
    
    
    
    
    
        
  
        
        
        
            
            
            
            
        
            Rent:£150 WeekProperty only to be let as a whole
                Tenancy Fees Information
            10 Bedrooms (10 Available)Available 01/07/2026Security Deposit:£490 Per Person (per year)
        
    
    
        
        
            
                Advert Ref:MSHP10247923
            
             
            No. of bedrooms available10
                Available:
                
                    01/07/2026
                
            
         
        
     
    
        
        
            £150FromPer person per week£150.00 PP/Per Week (price for comparison)
		 Click for a full range of prices
	
                 
                Summer ConcessionHalf RentSecurity Deposit:£490 Per Person (per year)
                 
                Tenancy Fees Information
            Tenancy Deposit Scheme:My Deposits CustodialGuarantor Required:UK based guarantor required to pay by instalmentsContract Length:Long Let
                Rent Includes
                
                    ElectricityGasWaterBillsTv LicenceInternetBuildings InsuranceContents InsuranceBreakfastEvening MealBed linen/towelsUncapped
                
                
                
            
         
        
     
    
     
    
		
    
			
				| Description | Price | Frequency | Price for comparison (per day)* | 
				|  | £150 | Per person per week | £21.43 | 
				|  | £6500 | whole property per month | £213.70 | 
		
* Prices per day are based on 365 days in a year. Whole property prices per day based on a single occupant / family unit
	 
            
            
    
    
        Property Details:
 
        Property Type:
Shared/Whole Property, House
        
        
        Area:
Rusholme
        Town:
Manchester
       
        
        
        
        
        
        Total number of bedrooms:
10
        
        
        Heating:
Gas Heating
        
        
        
     
    
 
            
            
wooohoo
            
            
		
    Shared Facilities:
    
			- Bicycle Storage
- Broadband Internet
- Caretaker/Team on site after hours
- Dishwasher
- Double Glazing
- Front or Back Garden/Yard
- Gym
- Lift
- Microwave
- Onsite Launderette
- Recent Redecoration (Within 5 Years)
- Satellite Dish/Cable
- Seperate WC
- Telephone
- Television
- Tumble Dryer
- Washing Machine
- Wheelchair Access
- Wireless Internet
 
		
    Private Facilities:
    
			- All Double Bedrooms
- En-Suite
- Meal Option
- Off Road Parking
- Secure Car Parking
 
		
    Suitable For:
    
			- Family
- Lodger
- Pets
- Postgraduates
- Staff
- Undergraduates
 
		
    Sustainable Living:
    
			- Compost Bin
- Double Glazed Windows
- Energy Efficient Boiler
- Energy Efficient Domestic Appliances
- Energy Efficient Light Bulbs
- Heating Timer and/or Programmer
- Insulation
- Internal Recycle Bin
- Low Flow Shower
- Renewable Energy for Electricity
- Renewable Energy for Heating
- Room Thermostat
- Smart Meter
- Solar Panels
 
		
    Safety & Security:
    
			- Burglar Alarm
- CCTV
- Key Code Entry System
- Key Fob Entry
- Security Lighting
- Video Entry System
 
		
 Mobility
 
			- Adapted Bathroom
- Adapted Kitchen
- Adapted Toilet
- Allergy Free
- Door(s) wide enough for wheelchair access (external 800mm, internal 750mm)
- Fairly Level Access Throughout
- Ground Floor Bathroom
- Ground Floor Bathroom with sufficient space for a Wheelchair
- Ground Floor Bedroom
- Ground Floor Bedroom with sufficient space for a Wheelchair
- Ground Floor Toilet with sufficient space for a Wheelchair
- Ground Floor WC
- Level Entry Shower / Wet Room**
- Mid Height Sockets / Switches**
- Moveable Access Ramp
- No Difficult Outside Steps
- Permanant Level or Ramped Access
- Shower / Wet Room
- Shower Over Bath
- Visual / Vibrating Fire Alarm
- Wall Mounted Shower Seat
 
            
            
    
    
    
    
    
    
		
        HMO Certified
        HMO Expires17/04/2027
    
	
    
    
    
    
    
    
    
    
    
    
    
 
            
            
        
            
                | ENERGY EFFICIENCY RATING | 
            
                |  | Actual | Poss | 
            
                | 
                        (92+)A (81-91)B (69-80)C (55-68)D (39-54)E (21-39)F (1-20)G | 
                        63
                     | 
                        82
                     | 
        
    
            
            
            
            
            
            
    
    
        Agent/Landlord Details:
        
        
        Agent/Landlord:HK Group
        Agent/Landlord:Lesley Hynes
        Contact:Lesley Hynes
        
        
        
        
        
        
        
        
        Click to show contact info
        
        Accreditation Rating: 
        
     
    
 
            
            
    
    
        Please mention Studentpad when booking your student accommodation