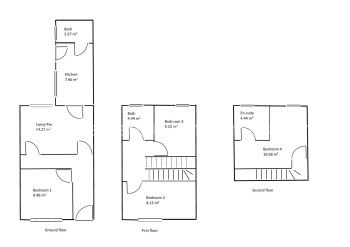
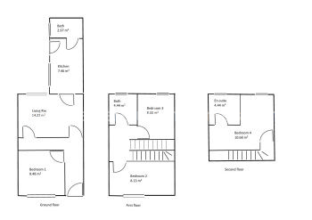
A fully furnished 4-bedroom student property available in the ever-popular Fallowfield area. The property benefits from double bedrooms (1 of which is en-suite), two further bathrooms, separate kitchen and living area. The house is within an easy walking distance to the universities.
In brief, the property comprises of 4 bedrooms all furnished with beds, wardrobes and desks. Two well maintained shared bathrooms (as well as 1 en-suites), a separate lounge with dining area, brand new sofas, smart TV and a separate kitchen with all mod-cons. The house is fully-furnished and maintained to a high-standard throughout.
Rent:£160 WeekProperty only to be let as a whole
Tenancy Fees Information
4 Bedrooms (4 Available)Available NowSecurity Deposit:£775 Per Person (per year)
Advert Ref:MSHP10256098
No. of bedrooms available4
Available:
Now
£160FromPer person per week£160.00 PP/Per Week (price for comparison)
Click for a full range of prices
Summer ConcessionHalf RentHolding Deposit£160.00 -160.00Security Deposit:£775 Per Person (per year)
Tenancy Fees Information
Tenancy Deposit Scheme:My Deposits InsuredCouncil Tax Band:BGuarantor Required:UK based guarantor required to pay by instalmentsContract Length:Long Let
Rent Includes
ElectricityGasWaterBillsTv LicenceInternetBuildings InsuranceContents InsuranceBreakfastEvening MealBed linen/towelsUncapped
| Description | Price | Frequency | Price for comparison (per day)* |
| £160 | Per person per week | £22.86 |
* Prices per day are based on 365 days in a year. Whole property prices per day based on a single occupant / family unit
Property Details:
Property Type:
Shared/Whole Property, House
Area:
Fallowfield
Town:
Manchester
Total number of bedrooms:
4
Heating:
Gas Heating
wooohoo
Shared Facilities:
- Bicycle Storage
- Broadband Internet
- Caretaker/Team on site after hours
- Dishwasher
- Double Glazing
- Front or Back Garden/Yard
- Gym
- Lift
- Microwave
- Onsite Launderette
- Recent Redecoration (Within 5 Years)
- Satellite Dish/Cable
- Seperate WC
- Telephone
- Television
- Tumble Dryer
- Washing Machine
- Wheelchair Access
- Wireless Internet
Private Facilities:
- All Double Bedrooms
- En-Suite
- Meal Option
- Off Road Parking
- Secure Car Parking
Suitable For:
- Family
- Lodger
- Pets
- Postgraduates
- Staff
- Undergraduates
Sustainable Living:
- Compost Bin
- Double Glazed Windows
- Energy Efficient Boiler
- Energy Efficient Domestic Appliances
- Energy Efficient Light Bulbs
- Heating Timer and/or Programmer
- Insulation
- Internal Recycle Bin
- Low Flow Shower
- Renewable Energy for Electricity
- Renewable Energy for Heating
- Room Thermostat
- Smart Meter
- Solar Panels
Safety & Security:
- Burglar Alarm
- CCTV
- Key Code Entry System
- Key Fob Entry
- Security Lighting
- Video Entry System
Mobility
- Adapted Bathroom
- Adapted Kitchen
- Adapted Toilet
- Allergy Free
- Door(s) wide enough for wheelchair access (external 800mm, internal 750mm)
- Fairly Level Access Throughout
- Ground Floor Bathroom
- Ground Floor Bathroom with sufficient space for a Wheelchair
- Ground Floor Bedroom
- Ground Floor Bedroom with sufficient space for a Wheelchair
- Ground Floor Toilet with sufficient space for a Wheelchair
- Ground Floor WC
- Level Entry Shower / Wet Room**
- Mid Height Sockets / Switches**
- Moveable Access Ramp
- No Difficult Outside Steps
- Permanant Level or Ramped Access
- Shower / Wet Room
- Shower Over Bath
- Visual / Vibrating Fire Alarm
- Wall Mounted Shower Seat
| ENERGY EFFICIENCY RATING |
| |
Actual |
Poss |
(92+)A
(81-91)B
(69-80)C
(55-68)D
(39-54)E
(21-39)F
(1-20)G
|
58
|
78
|
Agent/Landlord Details:
Agent/Landlord:Kestrel Management Ltd
Contact:Kestrel Management Ltd
Click to show contact info
Accreditation Rating:
Please mention Studentpad when booking your student accommodation
Unable to load Google Map
- Please ensure you have JavaScript installed and enabled, and that your internet browser is up to date.
- If you were prompted to block or allow content from other websites when entering this page, you need to select to allow the content. [ Reload this page ]
Note: Map pins show approximate property locations.
Travel Times
The landlord, letting agent or private hall may charge fees that are additional to the rent and deposit. Depending on your circumstances and the property you select there may be the following up- front fees:
- General administration fees
- Reference fees (including credit checks, bank, guarantor, previous landlord, etc.)
- Application fees
- Fees for drawing up tenancy agreements
- Inventory fees (including check in and check out fees)
- Guarantor arrangement / application fees
- Additional occupant fees
- Pets disclaimer fees / additional pet deposit
Fees may be charged on a per property, per person or per tenancy basis.
At Manchester Student Homes we encourage landlords, letting agents and private halls not to charge additional up-front fees. Accommodation providers who have achieved Accreditation Plus (A+) status have declared that they do not charge additional fees, however we would always advise you to check with the accommodation provider whether any additional fees apply and if they are refundable.