VIDEO VIEWING AVAILABLE ON REQUEST
This is a very spacious house in the very popular Victoria park area .
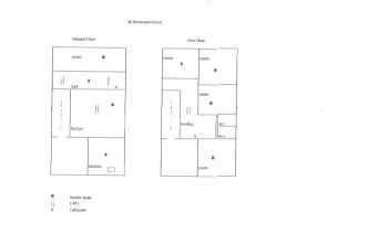
All bedrooms are large doubles and this property benefits from large communal living areas. The kitchen is huge and so is the lounge. There are also 2 bathrooms with showers. Laminate flooring downstairs, leather sofas etc.
The house is double glazed, has off- road parking and a large front garden.
**HALF RENT JULY/AUGUST**. ALL INCLUSIVE RENT £170 all inclusive plus broadband and sky TV! Deposit just £350 per person.
Rent:£170 MonthProperty only to be let as a whole
Tenancy Fees Information
5 Bedrooms (5 Available)Available 01/07/2026Security Deposit:£350 Per Person (per year)
Advert Ref:MSHP8892566
No. of bedrooms available5
Available:
01/07/2026
£170FromPer person per month£39.23 PP/Per Week (price for comparison)
Click for a full range of prices
Summer ConcessionHalf RentSecurity Deposit:£350 Per Person (per year)
Tenancy Fees Information
Tenancy Deposit Scheme:Tenancy Deposit SchemeGuarantor Required:UK based guarantor required to pay by instalmentsContract Length:Long Let
Rent Includes
ElectricityGasWaterBillsTv LicenceInternetBuildings InsuranceContents InsuranceBreakfastEvening MealBed linen/towelsUncapped
Description | Price | Frequency | Price for comparison (per day)* |
| £170 | Per person per month | £5.59 |
* Prices per day are based on 365 days in a year. Whole property prices per day based on a single occupant / family unit
wooohoo
Shared Facilities:
- Bicycle Storage
- Broadband Internet
- Caretaker/Team on site after hours
- Dishwasher
- Double Glazing
- Front or Back Garden/Yard
- Gym
- Lift
- Microwave
- Onsite Launderette
- Recent Redecoration (Within 5 Years)
- Satellite Dish/Cable
- Seperate WC
- Telephone
- Television
- Tumble Dryer
- Washing Machine
- Wheelchair Access
- Wireless Internet
Private Facilities:
- All Double Bedrooms
- En-Suite
- Meal Option
- Off Road Parking
- Secure Car Parking
Suitable For:
- Family
- Lodger
- Pets
- Postgraduates
- Staff
- Undergraduates
Sustainable Living:
- Compost Bin
- Double Glazed Windows
- Energy Efficient Boiler
- Energy Efficient Domestic Appliances
- Energy Efficient Light Bulbs
- Heating Timer and/or Programmer
- Insulation
- Internal Recycle Bin
- Low Flow Shower
- Renewable Energy for Electricity
- Renewable Energy for Heating
- Room Thermostat
- Smart Meter
- Solar Panels
Other Facilities:
2 bathrooms
Safety & Security:
- Burglar Alarm
- CCTV
- Key Code Entry System
- Key Fob Entry
- Security Lighting
- Video Entry System
Mobility
- Adapted Bathroom
- Adapted Kitchen
- Adapted Toilet
- Allergy Free
- Door(s) wide enough for wheelchair access (external 800mm, internal 750mm)
- Fairly Level Access Throughout
- Ground Floor Bathroom
- Ground Floor Bathroom with sufficient space for a Wheelchair
- Ground Floor Bedroom
- Ground Floor Bedroom with sufficient space for a Wheelchair
- Ground Floor Toilet with sufficient space for a Wheelchair
- Ground Floor WC
- Level Entry Shower / Wet Room**
- Mid Height Sockets / Switches**
- Moveable Access Ramp
- No Difficult Outside Steps
- Permanant Level or Ramped Access
- Shower / Wet Room
- Shower Over Bath
- Visual / Vibrating Fire Alarm
- Wall Mounted Shower Seat
HMO Certified
HMO Expires25/06/2030
ENERGY EFFICIENCY RATING |
|
Actual |
Poss |
(92+)A
(81-91)B
(69-80)C
(55-68)D
(39-54)E
(21-39)F
(1-20)G
|
49
|
71
|
Please mention Studentpad when booking your student accommodation
Unable to load Google Map
- Please ensure you have JavaScript installed and enabled, and that your internet browser is up to date.
- If you were prompted to block or allow content from other websites when entering this page, you need to select to allow the content. [ Reload this page ]
Note: Map pins show approximate property locations.
Travel Times
The landlord, letting agent or private hall may charge fees that are additional to the rent and deposit. Depending on your circumstances and the property you select there may be the following up- front fees:
- General administration fees
- Reference fees (including credit checks, bank, guarantor, previous landlord, etc.)
- Application fees
- Fees for drawing up tenancy agreements
- Inventory fees (including check in and check out fees)
- Guarantor arrangement / application fees
- Additional occupant fees
- Pets disclaimer fees / additional pet deposit
Fees may be charged on a per property, per person or per tenancy basis.
At Manchester Student Homes we encourage landlords, letting agents and private halls not to charge additional up-front fees. Accommodation providers who have achieved Accreditation Plus (A+) status have declared that they do not charge additional fees, however we would always advise you to check with the accommodation provider whether any additional fees apply and if they are refundable.